квартира, 4-кімн., Харьков, Павлово Поле, Профессорская
3 405 000 грн
($78 000)
($78 000)
| ID | 1019471 |
| Ціна | 3 405 000 грн ($78 000) |
| Дата | 23.03.26 |
| Населений пункт | Харьков |
| Район | Павлово Поле |
| Вулиця | Профессорская |
| Кількість кімнат | 4 |
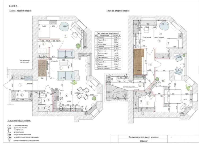
| Площа, м² | 130 |
| Площа житлова, м² | 75 |
| Площа кухні, м² | 20 |
| Поверх | 14 |
| Поверхів буд | 15 |
| К-ть балконів | 2 |
| Стан | под отделку |
| Матеріал стін | кирп |
В продаже 4-х комнатная квартира в ЖК Сокольники. Двухуровневая квартира: 14-й и15-й этажи, под отделку. Перепланировка узаконена. Общая площадь: 130 м2