квартира, 1-кімн., Харьков, Журавлевка, Борткевича
1 004 000 грн
($23 000)
($23 000)
| ID | 1019481 |
| Ціна | 1 004 000 грн ($23 000) |
| Дата | 31.03.26 |
| Населений пункт | Харьков |
| Район | Журавлевка |
| Вулиця | Борткевича |
| Кількість кімнат | 1 |
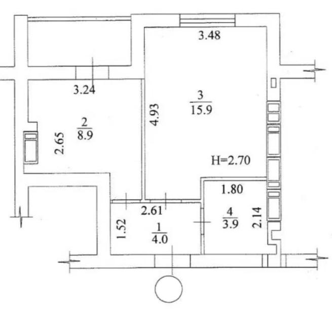
| Площа, м² | 33 |
| Площа житлова, м² | 16 |
| Площа кухні, м² | 9 |
| Поверх | 6 |
| Поверхів буд | 9 |
| К-ть балконів | 1 |
| Стан | строит. |
| Матеріал стін | кирп |
В продаже 1-комн. квартира в ЖК Гидропарк. Строительное состояние, общая площадь - 33 м2, 6-й этаж